















Desarrollamos esta escala de obras desde cierta autogestión y es desde ésta, que nuestra búsqueda proyectual es en función de los sujetos que van a interactuar con la obra desde el adentro o el afuera sean habitantes, vecinos o transeúntes. Buscamos relacionarnos con el entorno inmediato y con el espacio público a través de la definición y expresión de diferentes escalas de lectura de la obra, y de la permeabilidad de sus límites, generando diálogo entre interiores y exteriores.
La calidad de la habitabilidad es también entendida desde esa continuidad espacial, desde la necesaria presencia de la luz natural, el arbolado de nuestras calles, los linderos, la ciudad. La elección de la materialidad y los sistemas constructivos está ligada a la necesidad de perdurabilidad en el tiempo, que la obra de cuenta de él y no del desgaste.
Intentamos construir una identidad desde gestos presentes pero silenciosos, repitiendo o reelaborando criterios.
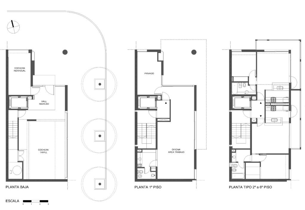
En la intersección de las calles San Lorenzo y Santiago, en la ciudad de Rosario, se emplaza este edificio a dos cuadras del boulevard Oroño y a un kilómetro del Parque de la Independencia. El peculiar lote en esquina y de acotadas dimensiones determinó el esquema de distribución del proyecto: ambientes principales en relación con la calle con orientación Norte y Este, y paquete de servicios (caja de escalera, ascensor y baños) apoyados sobre la medianera. El terreno se ocupa en su totalidad, y generando un plano de fachada que excede la línea de edificación los 1,20mts permitidos en casi todo el perímetro, se explota al máximo la capacidad del lote.
La repetición de la planta tipo está signada por la utilización del recuso de la trama; allí se alojan los balcones de los departamentos. Este elemento que caracteriza e identifica formalmente al edificio, está compuesto por losas y columnas intercaladas de hormigón armado visto y consolida la esquina al recomponer en altura el ángulo recto de encuentro de ambas calles. La trama construida en voladizo está sostenida, en su parte posterior, por una trama interior formada por tabiques y vigas que componen la estructura portante de todo el conjunto.
El primer piso -destinado a oficinas- funciona como una transición entre el nivel de planta baja y la trama superpuesta de los balcones. Esta planta se recorta en la esquina y desmaterializa la ochava, generando un espacio de doble altura que otorga escala urbana al ingreso.
En este tipo de edificios en propiedad horizontal, se atiende a la repetición y a las diferencias. En este proyecto, la diferencia radica en la espacialidad de la planta baja, sacándole partido al recurso de la planta libre, y otorgando así continuidad visual entre el interior del edificio y el espacio público. La utilización en todo su perímetro de una trama abierta de perfiles metálicos cierra físicamente la planta baja, aunque no visualmente.
Entre el hall de ingreso y el sector de cocheras no existen límites físicos, sacándole partido a la continuidad espacial posibilitada por la planta libre. El límite se plantea simplemente al utilizar en el hall, elevado unos centímetros, un material de un acabado brillante como el granito negro en contraposición a la opacidad del piso gris de baldosas, y bajando el nivel de techo con un cielorraso suspendido en contraposición a la rusticidad de la losa de hormigón vista.

































