



































Los primeros días del 2020 fuimos a ver la primera de una larga lista de posibles casas a reformar. Buscábamos una casa con historia, con techos altos, bovedillas de ladrillo, muros fuertes y portantes y aberturas de madera: una típica casa chorizo Argentina. Ese mismo día encontramos Casa Piragua, bastante diferente a como se ve ahora, pero con la misma esencia. Pensamos desde el inicio en una intervención que trabaje con la memoria y el paso del tiempo de los materiales y los objetos y también con las nuevas técnicas y formas constructivas de la actualidad.
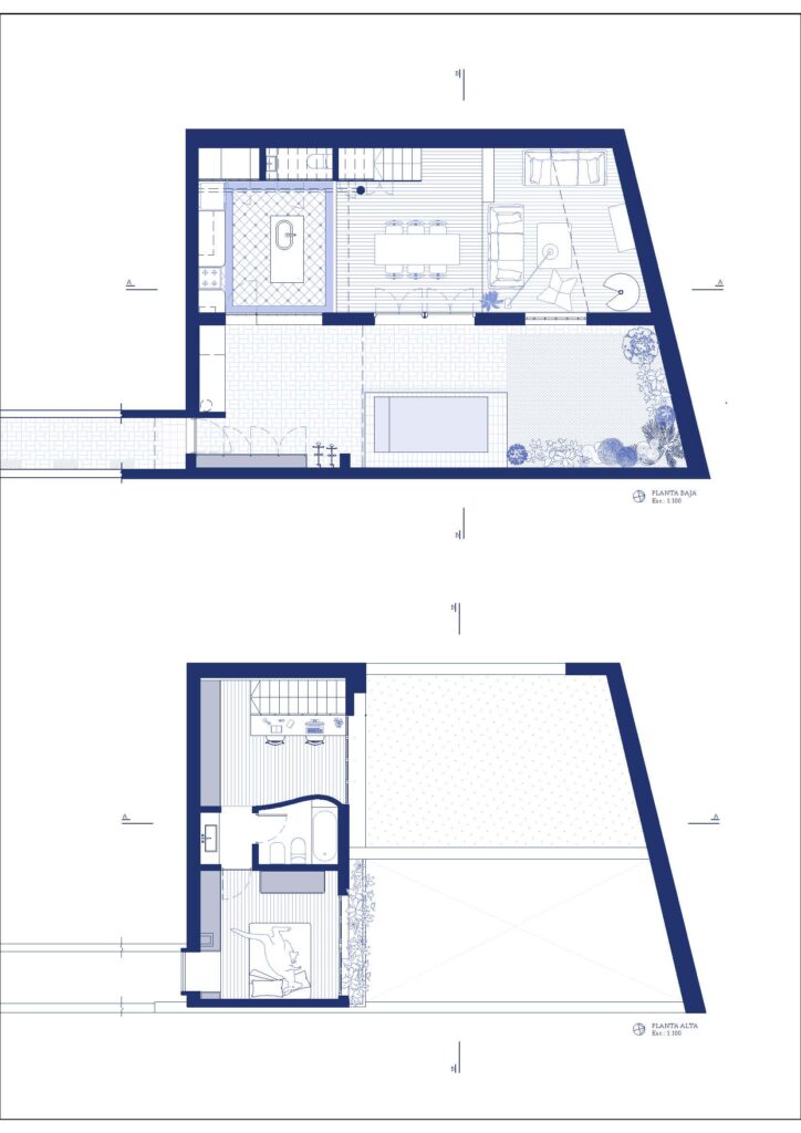
Esta es una casa proyectada y construida durante la pandemia, entre 2020 y 2021, por lo que es una casa que se entrega a la multifuncionalidad del hogar, que deja atrás el anhelo de privacidad y lo cambia por el de encuentro y apertura: lo último que quiere Casa Piragua es ser un bunker, un estuche, un confesionario, y lo que más quiere es ser un club, con mucha luz, con verde y con espacio para alojar multitudes. Como en todas las casas, sobre todo en y desde la pandemia, se superponen todas las actividades del día desparramadas por prácticamente todos los espacios la casa de manera intermitente. En Casa Piragua se acepta ese modo de habitar y se huye del aislamiento: desde todos los espacios se ven otros espacios. Esto es una búsqueda tanto en planta como en corte: transformamos la tradicional sucesión de cuartos separados por muros y puertas, que dividen usos y marcan privacidad, en espacios unificados. A la diferenciación de cada ambiente con sus propios materiales, colores y texturas, la combinamos en un gran espacio que puede ser muchos lugares al mismo tiempo.
En este proyecto buscamos que todo lo nuevo que entre a la casa respete y ponga en valor lo heredado. Rescatamos muchos elementos y particularidades de la casa original y los combinamos con partes de otras casas que ya no están, pero nos dejaron puertas y ventanas, barandas, muebles y una escalera caracol. Intentamos innovar utilizando materiales nobles y tradicionales, que conserven la memoria de esta casa y registren el paso del tiempo. A las paredes originales las desnudamos para dejar el ladrillo visto, con sus cicatrices e historia: las grietas de las paredes se cosieron con llaves que quedan a la vista; los huecos de la medianera son las huellas del muro que se derrumbó para unificar los ambientes y del cielorraso de madera que ocultaba 1m más de altura de techos.
Los elementos nuevos de la obra también se reutilizan y resignifican: las maderas y los puntales del encofrado de la losa de hormigón se transformaron en la biblioteca del entrepiso. Así, tanto el dibujo del hormigón como la biblioteca y los tirantes del entrepiso copian el mismo ritmo de 63cm de la bovedilla original. En la cocina, los mosaicos graníticos que dibujan una alfombra en el piso suben por la pared y arman su propia composición junto con los muebles y electrodomésticos. La cocina de Casa Piragua rebalsa de colores e invade el comedor con una columna azul hecha de caños petroleros que, sin llegar hasta el techo, sostiene la planta alta.
La planta alta es completamente nueva, es la ampliación de la casa original. Este bloque se posa sobre la casa original y contiene estudio, baño y habitación. Se abre al norte con una fachada que muestra aberturas distintas, pero se unifica con dos vigas-canaletas de hormigón en forma de U, que son también alero y cantero, y arman un juego de luces y sombras mientras el verde se expande por la fachada. Interiormente, toda la planta alta comparte el mismo cielorraso abovedado de machimbre que quiere ser una de las bovedillas originales, pero con su propia escala. Debajo de este bloque se arma una galería: un espacio semicubierto que es parte del patio y a la vez una extensión de la cocina, justo en el ingreso de la casa. Así, lo primero que vemos cuando llegamos es el espacio social más importante en Argentina: la galería, la parrilla y el patio; el verde y el asado.

































