





















El Edificio RZ1248 completa la fachada urbana por calle Rodríguez, conformada por una sucesión de edificios de vivienda en altura cuyos balcones se entremezclan con la arboleda pública, así entonces, sacando partido de su heterogeneidad consigue la unidad.
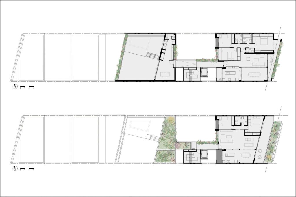
El proyecto consiste en tres volúmenes de superficie construida, que alojan unidades de diferentes tipologías y cocheras, vinculados por pasarelas abiertas que ofician de palieres y permiten el acceso a las circulaciones verticales.
Las unidades son amplias, luminosas y cuentan con ventilación cruzada. En la intención de aportarle superficie semicubierta generosa a cada una y ante la limitante de la normativa municipal vigente en cuanto a la profundidad de los balcones; la estrategia fue dividir la superficie en dos balcones, pero sin resignarla: uno principal como continuación de las salas de estar; y otro de servicio para lavadero.
La inclusión de la vegetación como elemento de proyecto le aporta al edificio un valor agregado, al integrar el concepto de “servicios ecosistémicos” en las interrelaciones sustentables edificio-ciudad. Se incorpora un nuevo concepto de barandas que le da identidad a las fachadas, se materializan con un espesor para contener macetas con vegetación. Se intercalan las unidades de departamentos con diferentes espacios con vegetación como patios, palieres, terrazas, circulaciones y balcones. Así, el verde cuelga, trepa o invade, de la misma manera a como lo hace la luz, casi inevitablemente.

































