











































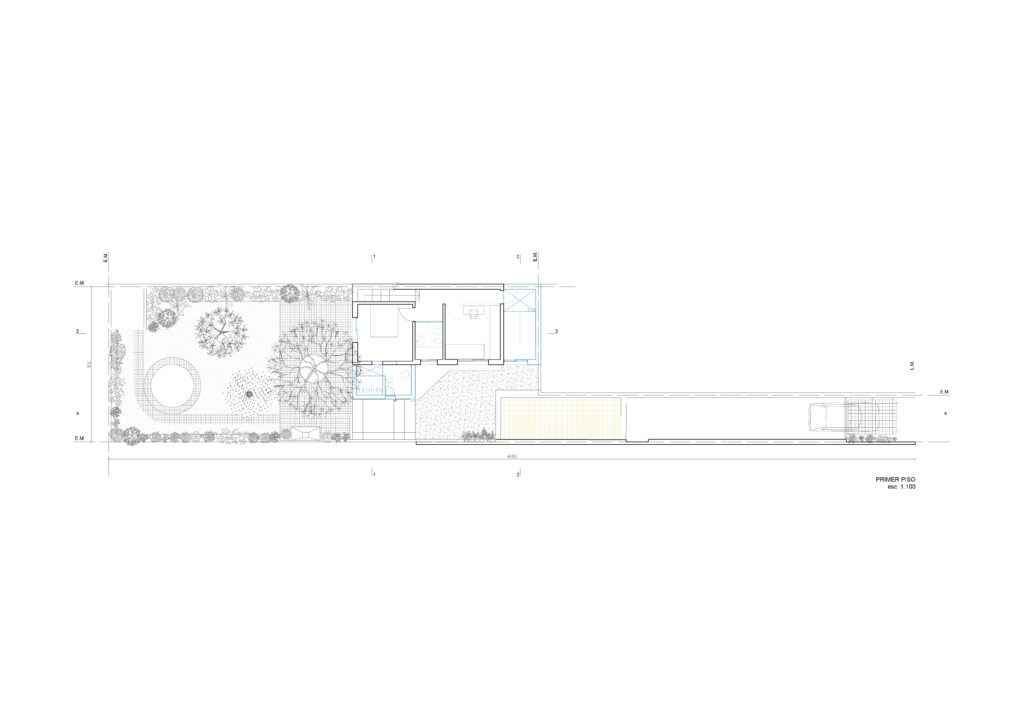
Ubicada en un lote interno del Barrio Parque de Rosario, esta casa se compone de dos construcciones separadas (estudio y hogar) intercaladas por tres espacios abiertos (patios uno, dos y tres).
El proceso de remodelación de la vivienda existente se compone de cuatro operaciones en planta baja:
1 – Retirar unos toldos rebatibles que se ubicaban en el patio dos para devolver luz del norte a todos los ambientes de la planta baja.
2 – Incorporar al espacio interior un jardín de invierno que había sido anexado: ubicando la cocina debajo de esa cubierta de cristal, se amplió la superficie del comedor.
3 – Vincular el frondoso patio tres con el interior de la casa mediante la apertura de un vano cuyas dimensiones implicaron trabajosas operaciones en lo que respecta a la estructura portante.
4 – Demoler un galpón de servicio del mencionado patio tres, retirar también senderos y canteros de material.
Así como en planta baja se aplican una serie de tareas que operan en el orden de la sustracción, en la planta alta y sobre dos terrazas existentes, se han sumado dos nuevos volúmenes de ampliación: por un lado, un dormitorio que, por su estrechez, se desarrolló en dos niveles y por otro, un núcleo de servicios para el dormitorio principal.
A lo largo de todo el proceso de proyecto y construcción, se buscó disimular los límites entre lo existente y lo nuevo. Acentuando esta voluntad, muchos materiales removidos se volvieron a utilizar: Los mosaicos del patio dos se recuperaron y reutilizaron en baño y lavadero; la ventana del living se corrió al dormitorio, la estructura metálica de toldos se transformó en las escaleras para los nuevos ambientes, entre otros movimientos de reciclaje. A su vez, la elección de las nuevas materialidades acompaña las antiguas: muros revocados, granitos, madera y adoquines.
En cuanto a colores, la casa poseía un carácter distintivo; algunos vestigios de estas preexistencias se preservaron en ciertos rincones estratégicos. En colaboración con la artista plástica Inés Beninca, se definieron los nuevos tonos que se adoptarían a fines de ampliar y, a la vez, preservar ese espíritu cromático.

































